SLIDE SHOW

Rif: T501 - Villa in Vendita A Giugliano in Campania

Zona Giugliano in Campania
Viale San Francesco D'Assisi
€ 550.000
  • Prezzo: € 550.000
  • Metratura: 230 mq
  • Anno: 1980
  • Piano: t su 1
  • Stato interno: Buono / Discreto
  • Camere: 4
  • Cucina: Abitabile
  • Bagni: 2
  • Terrazzo:
  • Riscaldamento: Autonomo
  • Classe energetica: F
  • IPE: 140,24 kWh/mqa
Classe Energetica
F

Descrizione

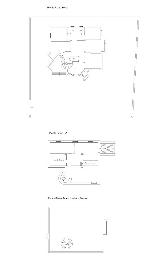
GARGIA IMMOBILIARE, ASSOCIATA FIAIP, PROPONE IN VENDITA VILLA SINGOLA DI 5 VANI CON GIARDINO DI CIRCA 600 MQ E TERRAZZO DI CIRCA 200 MQ a Giugliano in Campania, zona Monaci. La soluzione, di circa 230 mq interni, si sviluppa su più livelli. Al piano seminterrato sono presenti box auto, cantinato e tavernetta con forno a legna. Il piano terra è composto da: giardino di circa 600 mq con possibilità di parcheggio, ingresso, salone doppio con due punti luce e camino, cucina, tre camere, doppi accessori e ripostiglio. Completa la soluzione terrazzo di copertura di circa 200 mq al primo piano. E' presente impianto di riscaldamento autonomo. La villa è completamente indipendente con quattro lati liberi ed esposizione panoramica. Classe energetica F Ipe 140,24 Rif. T501 Per info e appuntamenti visita il nostro sito www.gargiaimmobiliare.it e scrivi a info@gargiaimmobiliare.it. Per restare sempre aggiornato segui Gargia Immobiliare su Facebook e Instagram.

Visualizza sulla mappa

Ricerca il tuo immobile

Invia un messaggio

  • info@gargiaimmobiliare.it
  • Tel: 0813302099
Accetto che Gargia Immobiliare tratti i miei dati personali in conformità al reg. UE 2016/679 (Leggi l'informativa qui )
Autorizzo
Non autorizzo